Welcome to Tai Fu Tai Mansion.
From an archaeological report in 2001-2002, the earliest period of Tai Fu Tai is around 1865 to 1898 being used as a residence. The site comprised the Tai Fu Tai Mansion, a large forecourt at the front, a building with a modest gatehouse to the north-west of the site where a paved path led from the entrance to the centre of the forecourt, and a pond. It is also believed to have a lychee garden behind the residence during this phase. Judging from the scale of the site and its components, it is believed that the owners should have enjoyed a life of luxury and wealth. Building ruins were uncovered opposite to the Mansion, including granite thresholds and brick column bases, which was believed to be once a ‘pavilion’ as a leisure place. This ‘pavilion’ was probably built at the same time as the Mansion or even before it, as the ‘pavilion’ extended beyond the present boundary wall.
根據一份2001-2002的考古報告,大夫第最早的時期應大約於1865-1898之間,當時用作住宅。該處由一幢宅第、前方一片空地、從空地以一條鋪切好的小路通往西北隅一座樸素的門樓、及一個池塘。相信當時在宅第的後方有一片荔枝園。 從大夫第的規模及各部份的組成所見,相信當時的主人應享受著奢華富貴的生活。 在宅第對面發現了建築的遺址,包括麻石門檻及磚柱礎,相信該處曾有一座‘涼亭’,是個休閒區。該‘涼亭’有部份位處大夫第的圍牆以外,大概是和宅第同時期、甚至於更早的時期建成。
① Tai Fu Tai Mansion
① 宅第
② Treasury
② 聚寶堂 (庫房)
③ Summer House
③ 涼亭
④ Pond
④ 池塘
⑤ Well
⑤ 水井
⑥ Store
⑥ 儲物室
⑦ Swinery
⑦ 豬欄
⑧ Open Lawn
⑧ 空地
⑨ Stone Path
⑨ 石路
⑩ Lychee Garden
⑩ 荔枝園
It is believed that the life at Tai Fu Tai evolved from the wealthy scholar-gentry to a more plebeian way of living, when the Man clan developed oil manufacturing workshop at Tai Fu Tai . There were two shops known as ②Kwang Tong Hing Peanut Oil Shop and ⑥ Kwang Tong Chong Peanut Oil Workshop Shop located at the east and at the north of ① Tai Fu Tai Mansion respectively. Kwang Tong Hing Peanut Oil Workshop was both a manufacturing workshop as well as functioning as a shop for peanut oil, while Kwang Tong Chong Peanut Oil Workshop was a shop selling peanut oil and grocery. A ③ treasury was located to the east of Kwang Tong Hing Peanut Oil Workshop, where a plastered decoration inscribed with three Chinese characters, Tsui Po Tong 聚寶堂 [Hall of Treasure] is found on the external wall surface. It is said that there were agricultural tools for processing grain inside the Treasury. It was later converted as swinery. A ④ ‘pavilion’ used as a summer house with a ⑤ pond at the front was located to the north of the Treasury. The building located at the northwest corner of the site was used as a ⑦ study. The area located west of the mansion was a ⑧vegetable field.
自從文氏於大夫第開設了煉油廠後,大夫第的生活亦從富裕的士紳階層演變為趨於平文化的生活方式。 當時有兩間店舖,分別為位於 ① 宅第東部的 ② 廣同興花生油舖及北部的 ⑥ 廣同昌花生油舖。 廣同興花生油舖同時用作生產花生油的工廠及店舖,而廣同昌花生油舖則主要為售賣花生油的店舖及雜貨舖。 位於廣同興花生油舖東面為一個 ③ 庫房,其外牆可見有一裝飾灰塑,上有「聚寶堂」三字。有說從前會把一些農具存放於庫房,後期更把庫房改成豬欄。 位於庫房以北有一 ④ ‘涼亭’,其前方有一 ⑤ 池塘。 位於大夫第西北隅的建築曾用作 ⑦ 書房。而宅第以西則曾是一片 ⑧ 菜田。
① Tai Fu Tai Mansion
① 宅第
② Kwang Tong Hing Peanut Oil Shop
② 廣同興花生油舖
③ Treasury, later used as Swinery
③ 庫房,後期用作豬欄
④ ‘Pavilion’ used as Summer House
④ ‘涼亭’
⑤ Pond
⑤ 池塘
⑥ Kwang Tong Chong Peanut Oil Shop
⑥ 廣同昌花生油舖
⑦ Study
⑦ 書房
⑧ Vegetable field
⑧ 菜田
⑨ Stone Path
⑨ 石路
⑩ Lychee Garden
⑩ 荔枝園
The ① Tai Fu Tai Mansion appears to be intact, which comprised a main building at the centre and two subsidiary buildings on both sides. It could also be observed that the east side chamber was a single-pitched roof, which is different from today. The area of ②Kwang Tong Hing Peanut Oil Shop could be clearly seen which appears to be a compound of four bays in width and some structures at the southwest corner. The ③ treasury should be part of the Kwang Tong Hing Peanut Oil Shop. It could be clearly observed that the ④summer house was actually a composition of two pitched roofed blocks perpendicular to each other. A small ⑥ well is observed close to the tip of the ⑤ pond. ⑦ The Kwang Tong Chong Peanut Oil Shop has already gone. It appears that fields were present at the ⑬ lychee garden. The group of outhouses to the northeast of the site can be observed, which shoul be the ⑧swinery and ⑨store. The ⑪stone path, ⑩vegetable field and ⑫open lawn are observed. It appears that fields were present at the ⑬lychee garden.
① 宅第似乎完好,以中央的主樓及兩側的兩座附屬建築組成。從航空照片亦可觀察到東面的廂房昔日採以單坡屋頂,有別於今天的雙坡屋頂。 ② 廣同興花生油舖一帶地區乃一個由四開間組成的建築群,其西南方亦可見有些結構。 ③ 庫房應為廣同興花生油舖的一部份。可觀察到 ④ 涼亭應由兩個成直角的金字屋頂建築組成。 位於 ⑤ 池塘 一端可見有一小 ⑥ 水井。 ⑦ 廣同昌花生油舖已經不存在。 位於大夫第東北方有一建築群,應為 ⑧ 豬欄及 ⑨ 倉庫。 ⑪ 石路、 ⑩ 菜田及 ⑫ 空地均清晰可見。 位於 ⑬ 荔枝園內似乎可見有田野。
① Tai Fu Tai Mansion
① 宅第
② Kwang Tong Hing Peanut Oil Shop
② 廣同興花生油舖
③ Treasury, later used as Swinery
③ 庫房,後期用作豬欄
④ ‘Pavilion’ used as Summer House
④ ‘涼亭’
⑤ Pond
⑤ 池塘
⑥ Well
⑥ 水井
⑦ Former Kwang Tong Chong Peanut Oil Shop
⑦ 廣同昌花生油舖
⑧ Swinery
⑧ 豬欄
⑨ Store
⑨ 倉庫
⑩ Vegetable field
⑩ 菜田
⑪ Stone Path
⑪ 石路
⑫ Open Lawn
⑫ 空地
⑬ Lychee Garden
⑬ 荔枝園
It is observed that there is no significant change in Tai Fui Tai in the post war period, except that some of the roofs appear to be absent at Kwang Tong Hing Peanut Oil Shop. It is said that during this period, the Mans rented the Mansion to poorer local families. A signage of the bonesetter, Tam Chiu Kau 譚超球 was present above the entrance of the west subsidiary building. It could imply that the west subsidiary building was used as the bone-setting clinic. ① Tai Fu Tai Mansion still appears to be intact. ② Kwang Tong Hing Peanut Oil Shop was already in a ruinous state. The group of outhouses to the northeast of the site can be clearly distinguished into three main parts, which were the ⑦swinery, ⑧store, and ⑨ a cluster of small outhouses. The ⑪stone path clearly dissected the open area into two parts: the ⑩ vegetable field to the west and an ⑫open lawn to the east. It appears that fields are present at the ⑬lychee garden. In the 1970s – 1980s, there was a cover over the ruins at the former site of Kwang Tong Hing Peanut Oil Shop. Some temporary structures were found at the vegetable field. A new gate was present to the north of the site starting from 1980.
於戰後時期,除了廣同興花生油舖的屋頂已消失外,大夫第似乎沒有明顯的改動。有說文氏於這時期將宅第租于本地較貧窮的家庭。於西面附屬建築的入口上方可見有一跌打師傅譚超球的招牌,相信當時的西面附屬建築曾用作跌打醫館。 ① 宅第仍保持原整。 ② 廣同興花生油舖已呈頹垣狀態。 位於大夫第東北部的附屬建築主要分為三大部分, ⑦ 豬欄、⑧ 倉庫和 ⑨ 一群小附屬建築。 ⑪ 石路把清楚把露天的空地分為兩部份: 分別為西面的 ⑩菜田及東面的 ⑫ 空地。 ⑬ 荔枝園內可見有農田。 於七十至八十年代,位於前廣同興花生油舖的頹垣上方加了上蓋。菜田內亦有一些臨時加建物。由1980年閧始,大夫第北面加設了一道新閘。
① Tai Fu Tai Mansion
① 宅第
② Kwang Tong Hing Peanut Oil Shop ( ruin )
② 廣同興花生油舖 ( 頹垣 )
③ Treasury, later used as Swinery
③ 庫房,後期用作豬欄
④ Summer House rented to a window-frame factory
④ ‘涼亭’ 被一窗框工廠租用
⑤ Pond
⑤ 池塘
⑥ Well
⑥ 水井
⑦ Swinery
⑦ 豬欄
⑧ Store
⑧ 倉庫
⑨ Other outhouses
⑨ 其他附屬建築
⑩ Vegetable field
⑩ 菜田
⑪ Stone Path
⑪ 石路
⑫ Open Lawn
⑫ 空地
⑬ Lychee Garden
⑬ 荔枝園
Tai Fu Tai was in a state of disrepair, which was found to be in a critical condition by the end of 1986. It was declared a monument soon with the consent from the Man clan and it was decided to undergo renovation for Tai Fu Tai in order to stabilize the structure and prevent further deterioration. Through such renovation, later additions were removed to reveal the original appearance of the Mansion. With a view to open to the public, minor adaptations and improvements were adopted for safety, lighting and provision of caretakers and offices. During such renovation, the single-pitched roof at the east side chamber of the main building was converted into double-pitched roof. It is also noticed that a brick chimney was constructed over the roof of the kitchen. In 1989, it is noticed that the treasury, summer house and the outbuildings at the boundary wall were found to become ruins. In 1990, the lychee garden and the vegetable fields were grown with trees, where the fields could hardly be detected. In 1993, the lychee garden at the rear of TFT began to be developed into the phase I of modern residential estate, Manor House. By the time when the residential estate was completed, it is observed that apart from the lychee garden at the rear, part of the vegetable field also fell into the development area of phase II Manor House. It could be observed that during this period, the pond was still absent, while the summer house area was surrounded by low fence wall and appeared to be overgrown.
大夫第已日久失修,更於1986年尾陷入危急的狀態。在得到文氏的同意之下,大夫第遂被列為法定古蹟,並進行復修,以穩固結構及防止大夫第進一步惡化。 透過是次復修,移除了後期加建的部份,把大夫第原來的模樣重現。 為了能向公眾開放,於大夫第進行了小型的改動及改善工程,以確保安全、照明及提供管理員的配套及辦公室。 是次復修中,位於主樓東廂房的屋頂被改成雙坡屋頂。此外,廚房的屋頂亦建了一個磚造煙囪。 1989年,庫房、涼亭及位於圍牆附近的附屬建築已成為頹垣。 1990年,荔枝園及菜田均長滿樹木,從航空照片並不能辦認有田野。 1993年,荔枝園開發成現代屋苑 - 大夫第花園第一期。當該屋苑落成後,除了荔枝園外,部份菜田也落入大夫第花園第二期的開發範圍。 這段時期之內已不能察覺出有池塘,而涼亭一帶已被矮圍牆圍繞並已雜草叢生。
① Tai Fu Tai Mansion (Large scale renovation in 1988)
① 大夫第 (1988年大規模復修)
② Treasury, Summer House (Ruin)
② 庫房及涼亭 (頹垣)
③ Vegetable Fields were grown
③ 菜田已雜草叢生
④ Lychee Garden began developed into modern residential estate
④ 荔枝圍開發為現代屋苑
⑤ Open Lawn
⑤ 空地
An archaeological excavation was carried out in 2001-2002 at Tai Fu Tai, mainly at the open lawn area and the former pond area. A furnace was present at the former pond area, which was believed to be used by the window-frame factory at the former summer house. After the ruins were removed, it was revealed that the floor of the summer house was laid with granite slab supporting on granite columns, where the water of the pond extended underneath. A flight of granite steps was revealed at the pond area during the excavation. During the archaeological excavation, the well framed with eight-sided granite, some granite slabs, granite threshold and column bases of a ‘pavilion’ at the northern part of the open lawn, and granite path were uncovered. A metal gate was installed at the old entrance gate in 2001. The store was in a ruinous state. After the archaeological excavation, the exterior area of Tai Fu Tai was restored to what were discovered which become the Tai Fu Tai we can see nowadays.
2001-2002年時在大夫第進行了考古挖掘,主要集中在空地及昔日池塘的地方進行。 昔日池塘的地方有一個熔爐,相信是位於昔日涼亭的窗框工廠所用。 移除頹垣敗瓦後,發現涼亭的地台為麻石板砌成,以麻石柱支撐,池塘的水也延伸至涼亭下方。經挖掘後,在池塘處發現了一段麻石梯級。 挖掘的過程中,還發現了一個由麻石所砌的八角形水井、一些麻石板、及屬於空地北方一個‘涼亭’ 的麻石門檻及柱礎、以及石路。 2001年的時候可見門樓裝設了一道鐵閘;而倉庫已成為頹垣。 經過考古挖掘後,大夫第的戶外空間根據考古挖掘的發現而復完至現今所見的模樣。
① Tai Fu Tai Mansion
① 宅第
② Archaeological excavation at Open Lawn area
② 古挖掘的空地
③ Archaeological excavation at Pond area
③ 古挖掘重現的池塘
Click here
按下連結
Interior.
Video
(詳參animation)
Video
(詳參animation)
Video
Shi Wan pottery on the front façade of the entrance building of the main building.
(詳參animation)
Video
傳統中式建築都採用青磚建成,而西方的古建築則以紅磚建成。青磚與紅磚的製作過程相近,亦同樣以粘土造成。粘土中含有鐵,在足夠氧氣的環境下,磚塊完全氧化會成為三氧化二鐵 (Fe2O3)
而呈現出紅色,即西方常用的紅磚。
青磚與紅磚的差異關鍵在於燒製過程的尾聲時,會於磚窰頂部加水來驅走窰內的空氣,形成一個低氧的環境。這樣的環境會使粘土中的鐵不完全氧化,成為四氧化三鐵
(Fe3O4)而呈現出青色,即中式建築常用的青磚。
Traditional Chinese buildings are built with grey bricks, while Western old buildings are built with red bricks. Both grey brick and red brick are made of clay, and the manufacturing process are similar. Clay contains iron. Under an environment with sufficient oxygen, the bricks will be completely oxidized and become ferric oxide (Fe2O3) to show a red color, which is the red brick commonly used in the West. The key to the difference between grey bricks and red bricks is that at the end of the firing process, water is added to the top of the brick kiln to drive away the air inside, creating a low-oxygen environment. Such an environment will enable an incomplete oxidation of the iron in the clay and become iron III oxide (Fe3O4), which is the grey brick commonly used in Chinese architecture.
Image 1
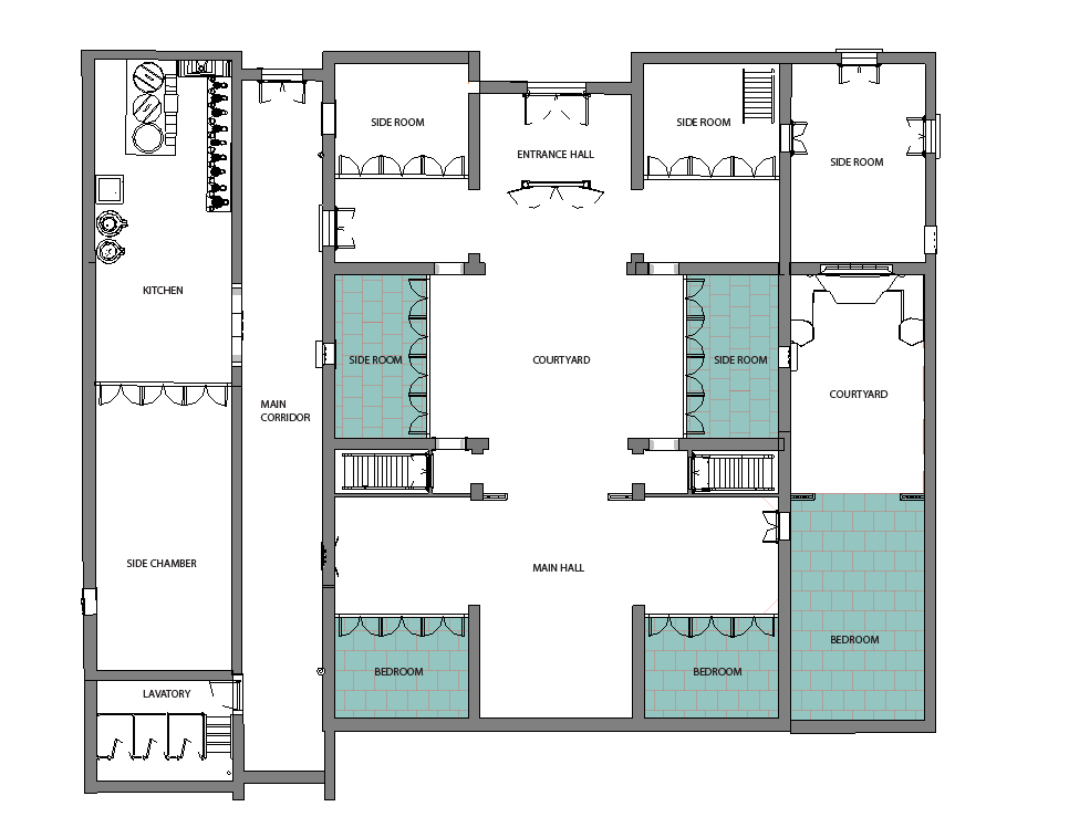
大夫第由一主樓及兩旁的附屬建築組,均有其獨立正門,全為兩進一院式,主樓面濶三開間,而附屬建築則面濶一開間。
Tai Fu Tai Mansion comprises a main building and two subsidiary buildings at the two sides, all with individual entrances. They are all of a two-hall and one court layout. The main building is of three bay in width, while the subsidiary buildings are of one bay in width.
Image 1
大夫第初建之時,其後方有一大片荔枝園,佔地比現時大夫第跟前方空地還要大。當時除了種有荔枝,還有農田。荔枝園原放有一石枱及長凳,在九十年代荔枝園賣出後便將石枱移到現時大夫第旁的花園去。
When Tai Fu Tai was built, there was a large piece of lychee garden at the back of the Mansion, which occupied a much greater space than the open lawn in the front. Lychee trees and fields could be found in the garden. There was once a set of stone table and benches in the garden, which was moved to the garden adjacent to the Mansion in the 1990s when the lychee garden was sold.
Image 1
(詳參animation)
Video
Interior.
Video
(詳參animation)
Video
天井是兩進之間的露天空間,有利於通風、採光和排水。每當下雨時,天井四周的雨水也會被引導向天井去,稱為「四水歸堂」。傳統風水有說水為財,從天井排走的雨水要經由屋內的排水道展轉排出屋外,可斂氣聚財。
The courtyard is an open space between two halls, which could facilitate ventilation, natural light intake and drainage of rainwater. Whenever it rains, the rainwater around the courtyard will be directed to the courtyard. Water is considered as wealth in traditional fengshui, the rainwater collected at the courtyard will have to be discharged out of the house through drainage inside the house, which could enhance the accumulation of wealth for the occupant.
Image 1
Image 2
大夫第有幾處都採以捲棚式屋頂,包括主樓正廳、主樓西廂房一樓走廊、廚房對面房間及東附屬建築末進,全部均位於靠近屋檐的位置。捲棚式的屋頂兩面相連處不做成屋脊,而採取了弧線形的曲面。 香港有些捲棚式屋頂的例子是不論室內或室外, 均可見到屋頂於中央呈曲面;而大夫第的捲棚式屋頂則收藏於整體的金字形屋頂之下,於室外不會察覺。
There are several areas in Tai Fu Tai Mansion which adopted humped-back roof, including the main hall and first floor of the west side chamber at the main building, the room opposite to the kitchen, and the end hall of the east subsidiary building. All the humped-back roofs are located close to the eaves. The roof adopted a curved profile instead of having a roof ridge at the junction of the two surfaces in a humped-back roof. There are examples of humped-back roof in Hong Kong, where the curved roof profile could be observed on the exterior; whereas the case in Tai Fu Tai Mansion is hidden under the pitched roof of the hall as observed from the exterior.
Image 1
Image 2
Image 3
(詳參animation)
Video
(詳參animation)
Video
左:記錄清朝皇帝褒獎及賜封文頌鑾父母,即文家珍及其夫人鄧氏的聖旨匾額。
右:記錄清朝皇帝褒獎及賜封文頌鑾父母,即文時皞及其夫人鄧氏的聖旨匾額。
兩塊橫匾記錄了清朝皇帝於光緒元年(公元1875年)頒下的聖旨,分別以中文和滿文書寫。文頌鑾擁有同知銜,清帝褒獎並賜封文頌鑾的祖父母和父母。文頌鑾的祖父和父親被贈予奉政大夫的官階,而祖母和母親則被贈予宜人的官階。中央的豎匾上寫著文灼勲,他通過了科舉考試中的殿試(科舉考試中的最高一級),在丙戌科達到進士最高級別,遂於清光緒十二年(1886年)欽點為營用守府。
Left :Plaque presenting the imperial edicts of the Qing emperor to praise and confer titles on the parents of Man Chung Luen, Man Ka Chun and wife Tang.
Right:laque presenting the imperial edicts of the Qing emperor to praise and confer titles on the grandparents of Man Chung Luen, Man Si Hou and wife Tang.
The two horizontal plaques written in Chinese and Manchu scripts present the imperial edicts of the Qing emperor which praise and confer titles on the grandparents and parents of Man Chung Luen, who possessed the official position (官職) title of Tongzhi 同知, in the first year of the reign of Guangxu 光緒元年 (1875 AD). The grandfather and father of Man Chung Luen were given the official rank 官階 title of Fengzheng Dafu while the grandmother and mother of Man Chung Luen were given the title of Yiren 宜人. The vertical plaque at the middle reads Man Cheuk Fan 文灼勲, who passed the Dianshi 殿試 exam of the Keju 科舉 system (the final round of the Imperial Civil Service Examination) and reached the highest rank of Jinshi 進士 at the Bingxu term 丙戌科 in the twelfth year of the reign of Guangxu in Qing Dynasty 清光緒十二年 (1886AD), was appointed as an official with the title Yingyong Shoufu 營用守府.
Unicorn 麒麟: Unicorn is a member of the "Four Supernaturals" 四靈. It symbolizes longevity, grandeur, illustrious offspring and wise administration.
Video
耳房各有三組隔扇門,隔心有通透而且豐富的木雕吉祥圖案, 上方及裙板則有以「四君子」梅、蘭、菊、竹為題材的雕刻彩繪圖案, 象徵高潔、不隨波逐流。有別於天井的廂房隔扇門設計,各耳房的隔扇 門只採用了四君子中的其中兩君子為題。而一樓的耳房隔扇門只有裙板 以竹為主題。
Each side room has three sets of screen doors. There are rich pierced wood carvings of auspicious patterns at the middle panel. At the top and lower panel , there are painted relief wood carvings of the “four gentlemen” patterns, i.e. plum blossom, orchid, chrysanthemum, and bamboo, embodying the messages of noble and not following the crowd blindly. Different from the design at the side chamber, the screen doors at each side room only adopts two of the four ‘gentlemen’ as the decorative motifs. The side room on the first floor only adopts bamboo motif at the lower panel.
Image 1
Image 1
Image 2
Image 3
Image 4
Image 5
耳房各有三組隔扇門,隔心有通透而且豐富的木雕吉祥圖案, 上方及裙板則有以「四君子」梅、蘭、菊、竹為題材的雕刻彩繪圖案, 象徵高潔、不隨波逐流。有別於天井的廂房隔扇門設計,各耳房的隔扇 門只採用了四君子中的其中兩君子為題。而一樓的耳房隔扇門只有裙板 以竹為主題。
Each side room has three sets of screen doors. There are rich pierced wood carvings of auspicious patterns at the middle panel. At the top and lower panel , there are painted relief wood carvings of the “four gentlemen” patterns, i.e. plum blossom, orchid, chrysanthemum, and bamboo, embodying the messages of noble and not following the crowd blindly. Different from the design at the side chamber, the screen doors at each side room only adopts two of the four ‘gentlemen’ as the decorative motifs. The side room on the first floor only adopts bamboo motif at the lower panel.
Image 1
Image 1
在主樓一樓外牆飾有四條白色柱子,柱頂飾以鰲魚灰雕。鰲魚有獨佔鰲頭的寓意。
On the first floor of the external wall of the main building, there are four white pillars with dragon fish plastered sculpture on top. Dragon fish symbolizes duzhan aotou (monopolize the head of an ao), the pursuit of in achieving academic excellence.
Image 1
3D Object
蓮蓬 + 鷺 = 一路連科 may you pass every imperial examinations continuously
蓮蓬 + 蓮花 + 蓮葉 = 因荷得藕 may you have good connection leading to a happy marriage
Video
此花罩全以多子的瓜果、佛手柑、 桃等為主題,寓意三多,即多福、 多壽、多男子
This decorative surround mainly applied motifs of melons and fruits of many seeds, Buddha’s hands and peach, which means three abundances (abundant good fortune and blessings, longevity and offspring
Image 1
3D Object
天井是兩進之間的露天空間,有利於通風、採光和排水。每當下雨時,天井四周的雨水也會被引導向天井去,稱為「四水歸堂」。傳統風水有說水為財,從天井排走的雨水要經由屋內的排水道展轉排出屋外,可斂氣聚財。
The courtyard is an open space between two halls, which could facilitate ventilation, natural light intake and drainage of rainwater. Whenever it rains, the rainwater around the courtyard will be directed to the courtyard. Water is considered as wealth in traditional fengshui, the rainwater collected at the courtyard will have to be discharged out of the house through drainage inside the house, which could enhance the accumulation of wealth for the occupant.
Image 1
(詳參animation)
Video
整幢大夫第中,只有正廳的廣東大階磚以菱形方式舖砌,而其他空間如正聽的耳房、天井兩旁的廂房及東面的附屬建築後進均有廣東大階磚以「工」字形砌法,其餘的室內空間更沒有以地磚舖地,突顯出了整幢大夫第中不同空間的不同重要性。
Throughout the entire Tai Fu Tai Mansion, Canton tiles are only applied to the main hall with a diamond pattern. Other spaces namely side rooms, the side chambers at the courtyard and the end hall of the east subsidiary building are paved with Canton tiles with a running bond pattern. The rest of the interior space is not paved with any flooring tiles, which highlights the hierarchy of different spaces within Tai Fu Tai Mansion.
Image 1
Image 2
耳房各有三組隔扇門,隔心有通透而且豐富的木雕吉祥圖案, 上方及裙板則有以「四君子」梅、蘭、菊、竹為題材的雕刻彩繪圖案, 象徵高潔、不隨波逐流。有別於天井的廂房隔扇門設計,各耳房的隔扇 門只採用了四君子中的其中兩君子為題。而一樓的耳房隔扇門只有裙板 以竹為主題。
Each side room has three sets of screen doors. There are rich pierced wood carvings of auspicious patterns at the middle panel. At the top and lower panel , there are painted relief wood carvings of the “four gentlemen” patterns, i.e. plum blossom, orchid, chrysanthemum, and bamboo, embodying the messages of noble and not following the crowd blindly. Different from the design at the side chamber, the screen doors at each side room only adopts two of the four ‘gentlemen’ as the decorative motifs. The side room on the first floor only adopts bamboo motif at the lower panel.
Image 1
Shi Wan pottery on the front façade of the entrance building of the main building.
左右對聯為:幾點梅中花落家僮未掃數聲竹裡鳥鳴倦客猶眠乃出自唐代大詩人王維的《田園樂七首 . 其六/閒居》:桃紅復含宿雨,柳綠更帶朝煙。 花落家童未掃,鶯啼山客猶眠。此詩寫作者退居輞川別墅與大自然親近的樂趣。此外,寫在竹子上的對聯都被稱為「此君聯」,「此君」即竹子。竹子向來受文人雅士所喜愛,亦由於此君聯能帶出文化氣息,故常出現於文人住宅。 橫批為「玩月」,即賞月的意思。
The couplets are originated from “Pastoral Bliss 6 of 7/Stay at home freely” by Wang Wei, a great poet of the Tang Dynasty: Peach-blows crimson, bearing the night’s drizzle drops, they glisten;桃紅復含宿雨 Willows so green, wearing the morning’s misty whiffs, they gleam.柳綠更帶朝煙 Petals fallen, the gardener houseboy, his grounds as yet un-swept;花落家童未掃 Orioles warbling, this man of the mountains still lies serene in dream.鶯啼山客猶眠 Such poem describes the pleasure of the author who retreated to the residence at Wangchuan and enjoyed being close to the nature. In addition, the couplets written on bamboo motif are known as “couplets of this person”, where “this person” means bamboo. Bamboo has always been favoured by literati and scholars, and since couplets on bamboo could build up a cultural ambience, and therefore it is quite commonly found in literati residences. The motif at the middle has the characters ‘玩月’, which means enjoy the moon.
Image 1
Image 2
Image 1
Image 2
Image 3
Image 1
Image 2
Image 1
Image 2
Image 3
Image 1
Image 2
Image 3
(詳參animation)
Video
Video
大夫第有幾處都採以捲棚式屋頂,包括主樓正廳、主樓西廂房一樓走廊、廚房對面房間及東附屬建築末進,全部均位於靠近屋檐的位置。捲棚式的屋頂兩面相連處不做成屋脊,而採取了弧線形的曲面。 香港有些捲棚式屋頂的例子是不論室內或室外, 均可見到屋頂於中央呈曲面;而大夫第的捲棚式屋頂則收藏於整體的金字形屋頂之下,於室外不會察覺。
There are several areas in Tai Fu Tai Mansion which adopted humped-back roof, including the main hall and first floor of the west side chamber at the main building, the room opposite to the kitchen, and the end hall of the east subsidiary building. All the humped-back roofs are located close to the eaves. The roof adopted a curved profile instead of having a roof ridge at the junction of the two surfaces in a humped-back roof. There are examples of humped-back roof in Hong Kong, where the curved roof profile could be observed on the exterior; whereas the case in Tai Fu Tai Mansion is hidden under the pitched roof of the hall as observed from the exterior.
Image 1
桃 + 佛手柑 +瓜/石榴 = 三多多福、多壽、多男子 獅子滾繡球 = 好事在後頭
Peach + Buddha’s + Melon/pomegranate = three abundances Abundant good fortune and blessings, longevity and offspring Lion rolling hydrangea ball = The best is yet to come
Image 1
3D Object
Image 1
傳統中式建築,通常甫進正門便會有一對屏門,俗稱「擋中」。這道屏門主要在正門大開時仍能保持室內的私隱。由於位置在建築中軸線上,亦起著阻擋視線的作用,固有「擋中」的俗稱。
In traditional Chinese architecture, usually there is a pair of screen doors upon entering the main entrance, commonly known as Dangzhong. This screen door can keep the privacy of the room when the main entrance is wide open. As the location is on the central axis of the building, it also plays a role in blocking the line of sight, so it is inherently commonly known as "blocking the centre" 「擋中Dangzhong」
此為「擋中」木柱的石柱礎,採以素面花盆八角底座造型,以減低木柱因受潮而腐爛。
These are the stone column bases of the timber columns of the ceremonial screen door for minimizing humid from the ground which may cause deterioration. An octagonal plain flower pot form is adopted.
Image 1
3D Object
(詳參animation)
Video
從1975年舊照片中可見,至少從70年代開始,大夫第室內已畫有磚線。真實原因不可考。 現場所見,有部份磚之間的填縫效果並不明顯,畫上磚線估計是業主希望突出磚牆的紋理。
From the old photo in 1975, at least since the 1970s, painted brick lines have already been applied to the interior of Tai Fu Tai Mansion. The reason is unknown. From site observation, some of the brick pointing is not significant, it is believed that the owner may want to highlight the pattern of the brickworks on the brick wall.
Image 1
Image 2
扇形玻璃窗上裝有畫上了精緻圖畫的玻璃,並飾以帶有洛可可風格灰雕。
The glass fanlights are fitted with exquisitely painted glass panes and highlighted with plastered sculptures with Rococo influence.
Image 1
3D Object
廚房內共有十一個小爐頭及三個大灶。這些爐灶都以燒柴生火煮食。三個大灶及位於廚房盡頭的兩個小爐頭上方均建有煙囪作排煙之用,在廚房外面也能看到。從廚房爐灶數量之多,反映出大夫第的氣派。
There are altogether eleven small burners and three large stoves in the kitchen. These stoves make use of firewood for cooking. Chimneys are built above the three large stoves and two small burners at the end of the kitchen for smoke extraction, which can be observed outside the kitchen. The amount of the stoves and burners reflects the luxurious life in Tai Fu Tai.
Image 1
3D Object大夫第有幾處都採以捲棚式屋頂,包括主樓正廳、主樓西廂房一樓走廊、廚房對面房間及東附屬建築末進,全部均位於靠近屋檐的位置。捲棚式的屋頂兩面相連處不做成屋脊,而採取了弧線形的曲面。 香港有些捲棚式屋頂的例子是不論室內或室外, 均可見到屋頂於中央呈曲面;而大夫第的捲棚式屋頂則收藏於整體的金字形屋頂之下,於室外不會察覺。
There are several areas in Tai Fu Tai Mansion which adopted humped-back roof, including the main hall and first floor of the west side chamber at the main building, the room opposite to the kitchen, and the end hall of the east subsidiary building. All the humped-back roofs are located close to the eaves. The roof adopted a curved profile instead of having a roof ridge at the junction of the two surfaces in a humped-back roof. There are examples of humped-back roof in Hong Kong, where the curved roof profile could be observed on the exterior; whereas the case in Tai Fu Tai Mansion is hidden under the pitched roof of the hall as observed from the exterior.
Image 1
瓜 + 佛手柑 + 桃 = 三多 多福、多壽、多男子
Melon + Buddha’s hand + Peach = three abundances Abundant good fortune and blessings, longevity and offspring
Image 1
Shi Wan pottery on the front façade of the entrance building of the main building.
Image 1
Image 2
Image 3
Image 4
位於走廊的去水筒應為陶水管,由一段段的部件接駁成為一條雨水管,以收集屋頂的雨水。在西方國家亦會使用。
The down pipe at the corridor should be a terracotta rainwater downpipe, which is assembled from sections to form a down pipe for the collection of rainwater from the roof. It is also commonly used in Western countries.
Image 1
廁格下方應會先放置一個馬桶,用以承接從上面掉下的排泄物。如廁時,如廁者會蹲到廁格裡去,排泄物會從廁格下的洞口掉到下方的馬桶裡去。馬桶需要定時清理,排泄物亦有可能會用作耕種的肥料。
A bucket should be placed under the toilet compartment for collecting the excrement falling from above. The person who goes to the toilet would have to squat over the opening inside the compartment, where the excrement will fall down to the bucket below. The bucket will need to be cleared from time to time. It is believed that the excrement may be used as fertilizer for farming.
Image 1
3D Object
此走廊主要為傭人的通道,主要連接大夫第的後勤方。走廊有與主建築分開的獨立入口,走廊盡頭有後門可通往後方昔日的荔枝園。走廊連接主建築、廚房及廁所。
This corridor serves as a circulation for the servants which mainly connects the main building to the back of house area. There are individual access to the main building and the corridor respectively. An exit is located at the end of the corridor to the lychee garden in the past. The corridor gives access to the main building, kitchen and the lavatory.
據明代《天工開物》描繪油榨的運作,將經處理的花生包裹後放進榨木內,槽裡要插進楔子,以撞木把楔子打進木槽中施以擠壓,油就會從榜木擠出。昔日的大夫第旁曾設有花生油廠,此榜木為僅存的器具。
This corridor serves as a circulation for the servants which mainly connects the main building to the back of house area. There are individual access to the main building and the corridor respectively. An exit is located at the end of the corridor to the lychee garden in the past. The corridor gives access to the main building, kitchen and the lavatory.
Image 1
Image 2
Image 3
這位置的木窗與西廂房一樓的木窗操作類近,故不另作描述。另外,於舊相片中似乎觀察不到此窗,或有可能是後加。
Transparent tile is a relatively special type of roof tile. Thin slices made of oysters, mussels or other shells were used in the early days for transparent tiles to achieve the light transmission; later on, transparent tile made of glass began to emerge. The application of the transparent tile is to apply the transparent tile instead of pan tile on the roof for light transmission. Transparent tiles could be found in darker space without many windows. lt could be found at the side room on the first floor of the main building, the store and swinery adjacent to the old entrance gate.
Image 1
整幢大夫第中,只有正廳的廣東大階磚以菱形方式舖砌,而其他空間如正聽的耳房、天井兩旁的廂房及東面的附屬建築後進均有廣東大階磚以「工」字形砌法,其餘的室內空間更沒有以地磚舖地,突顯出了整幢大夫第中不同空間的不同重要性。
Throughout the entire Tai Fu Tai Mansion, Canton tiles are only applied to the main hall with a diamond pattern. Other spaces namely side rooms, the side chambers at the courtyard and the end hall of the east subsidiary building are paved with Canton tiles with a running bond pattern. The rest of the interior space is not paved with any flooring tiles, which highlights the hierarchy of different spaces within Tai Fu Tai Mansion.
Image 1
曾經有一段時間,村民都會把磚牆加上批盪及油漆,原意為較容易打理,畫上磚線只是想模仿原來磚牆的模樣。但這幅牆身則在2011年維修時被發現原本為夯土建造。 夯土的牆身採以批盪,一來用以保護牆體,以來亦可增強夯土的強度。這兒畫上了磚線,可能是當時的住戶希望室內能達到整體上一致的感覺。
There was a period when villagers would add paint and painted brick lines to the brick walls. The original intention was to make it easier to take care of. The brick lines were added just to imitate the original brick walls. However, this wall was discovered to have been built with rammed earth during the restoration of Tai Fu Tai mansion in 2011. The rammed earth wall is finished with plaster to protect the wall, and to increase the strength of the rammed earth. The residents at that time may want to have an overall consistency to the interior and hence drew the brick lines here.
Image 1
明瓦是一種較為特殊的瓦,早期用蠣、蚌之類的殼磨製成的薄片,以逹至透光之效;後期開始出現有以玻璃造的明瓦。 明瓦的應用主要以明瓦代替板瓦舖在屋頂上,以達致透光的效果。明瓦見於室內較暗、沒多窗戶的空間。大夫第內則見 於兩間位於一樓的耳房、舊門樓旁邊的儲物室及豬舍。
Transparent tile is a relatively special type of roof tile. Thin slices made of oysters, mussels or other shells were used in the early days for transparent tiles to achieve the light transmission; later on, transparent tile made of glass began to emerge. The application of the transparent tile is to apply the transparent tile instead of pan tile on the roof for light transmission. Transparent tiles could be found in darker space without many windows. lt could be found at the side room on the first floor of the main building, the store and swinery adjacent to the old entrance gate.
Image 1
明瓦是一種較為特殊的瓦,早期用蠣、蚌之類的殼磨製成的薄片,以逹至透光之效;後期開始出現有以玻璃造的明瓦。 明瓦的應用主要以明瓦代替板瓦舖在屋頂上,以達致透光的效果。明瓦見於室內較暗、沒多窗戶的空間。大夫第內則見 於兩間位於一樓的耳房、舊門樓旁邊的儲物室及豬舍。
Transparent tile is a relatively special type of roof tile. Thin slices made of oysters, mussels or other shells were used in the early days for transparent tiles to achieve the light transmission; later on, transparent tile made of glass began to emerge. The application of the transparent tile is to apply the transparent tile instead of pan tile on the roof for light transmission. Transparent tiles could be found in darker space without many windows. lt could be found at the side room on the first floor of the main building, the store and swinery adjacent to the old entrance gate.
Image 1
Image 2
Image 3
(詳參animation)
Video
一樓廂房的一列木窗採以實心窗葉設計,完全關上時能給予最大的私隱度,又仍能保持室內空氣流通。六扇窗當中只有中央的兩對能開關。 關閉時,窗戶能從室內以橫閂鎖上。趟開時,窗葉能以勾勾著木框。
The row of timber panel windows on the first floor of the side chamber is designed with solid window leaves, which can provide maximum privacy when completely closed, while still maintaining ventilation to the interior. Only four of the six window leaves could be operated, which could be locked from the interior with latches when closed and fixed with hooks when opened.
Image 1
Image 2
桃 + 佛手柑 +瓜/石榴 = 三多多福、多壽、多男子 獅子滾繡球 = 好事在後頭
Peach + Buddha’s + Melon/pomegranate = three abundances Abundant good fortune and blessings, longevity and offspring Lion rolling hydrangea ball = The best is yet to come
Image 1
(詳參animation)
Video
釉面通風瓦採以柿蒂紋圖案,四角可見有如意圖案。「柿」字普通話與「事」同音,加上如意,寓意「事事如意」。
The glazed ventilation grille adopted a motif of persimmon stalk with Ruyi at each corner. The word “persimmon” in Mandarin (Shi) is homonymous with the word “matter” in Mandarin, together with Ruyi, the motif means “may everything go as you wished”. 1. Persimmon stalk 2. Ruyi如意
(詳參animation)
Video
大夫第有幾處都採以捲棚式屋頂,包括主樓正廳、主樓西廂房一樓走廊、廚房對面房間及東附屬建築末進,全部均位於靠近屋檐的位置。捲棚式的屋頂兩面相連處不做成屋脊,而採取了弧線形的曲面。 香港有些捲棚式屋頂的例子是不論室內或室外, 均可見到屋頂於中央呈曲面;而大夫第的捲棚式屋頂則收藏於整體的金字形屋頂之下,於室外不會察覺。
There are several areas in Tai Fu Tai Mansion which adopted humped-back roof, including the main hall and first floor of the west side chamber at the main building, the room opposite to the kitchen, and the end hall of the east subsidiary building. All the humped-back roofs are located close to the eaves. The roof adopted a curved profile instead of having a roof ridge at the junction of the two surfaces in a humped-back roof. There are examples of humped-back roof in Hong Kong, where the curved roof profile could be observed on the exterior; whereas the case in Tai Fu Tai Mansion is hidden under the pitched roof of the hall as observed from the exterior.
Image 1
Image 2
明瓦是一種較為特殊的瓦,早期用蠣、蚌之類的殼磨製成的薄片,以逹至透光之效;後期開始出現有以玻璃造的明瓦。 明瓦的應用主要以明瓦代替板瓦舖在屋頂上,以達致透光的效果。明瓦見於室內較暗、沒多窗戶的空間。大夫第內則見 於兩間位於一樓的耳房、舊門樓旁邊的儲物室及豬舍。
Transparent tile is a relatively special type of roof tile. Thin slices made of oysters, mussels or other shells were used in the early days for transparent tiles to achieve the light transmission; later on, transparent tile made of glass began to emerge. The application of the transparent tile is to apply the transparent tile instead of pan tile on the roof for light transmission. Transparent tiles could be found in darker space without many windows. lt could be found at the side room on the first floor of the main building, the store and swinery adjacent to the old entrance gate.
Image 1
耳房各有三組隔扇門,隔心有通透而且豐富的木雕吉祥圖案, 上方及裙板則有以「四君子」梅、蘭、菊、竹為題材的雕刻彩繪圖案, 象徵高潔、不隨波逐流。有別於天井的廂房隔扇門設計,各耳房的隔扇 門只採用了四君子中的其中兩君子為題。而一樓的耳房隔扇門只有裙板 以竹為主題。
Each side room has three sets of screen doors. There are rich pierced wood carvings of auspicious patterns at the middle panel. At the top and lower panel , there are painted relief wood carvings of the “four gentlemen” patterns, i.e. plum blossom, orchid, chrysanthemum, and bamboo, embodying the messages of noble and not following the crowd blindly. Different from the design at the side chamber, the screen doors at each side room only adopts two of the four ‘gentlemen’ as the decorative motifs. The side room on the first floor only adopts bamboo motif at the lower panel.
Image 1
客家瓦頂:客家屋頂採取仰合瓦砌法,一般而言仰瓦(凹面朝上的瓦片)和合瓦(凸面朝上的瓦片)均為板瓦,先將凹面朝上的板瓦一列一列排在椽子上,然後每兩行仰瓦之間蓋上一行密密麻麻、凸面朝上的板瓦,期間不會使用灰漿固定瓦片,近檐口處會使用灰漿塑造稱為灰梗屋檐的筒型端頭。客家瓦頂主要採用青色瓦片,有時會混合使用青色和紅色瓦片。客家屋頂的屋脊造型相對樸素。
廣府瓦頂:廣府瓦頂同樣仰合瓦砌法,一般而言仰瓦為板瓦,合瓦則為筒瓦,先將凹面向上的板瓦一列一列排在椽條上,然後每兩行板瓦之間添加灰漿和蓋上筒瓦,接著在筒瓦之上包裹灰漿並批蕩成平滑的長筒型(即灰梗),最後在灰梗上掃上烏煙。廣府瓦頂採用紅色的板瓦和筒瓦,灰梗掃上烏煙後呈黑色。廣府屋頂屋脊造型相對多變,會有較多裝飾。
Hakka roof tiling : Hakka roof tiling method make use of concave and convex tiling method. Generally speaking, pan tiles are used as both the concave tile ( pan tile with the concave surface facingup ) and the convex tile ( pan tile with the convex surface facing up ). First, arrage concave tiles on the battens in rows, followed by a row of densely packed convex tiles stacking over every two rows of concave tiles. Mortar will only be applied to the convex tiles close to the eaves to form plastered roll tiles. Hakka roof tiles mainly adopt grey tiles, and occasionally mixed with red tiles. The main ridge of a Hakka roof is relatively simple.
Canton roof tiling : Canton roof tiling method also make use of concave and convex tiling method. Generally speaking, pan tiles are still used as concave tile, with roll tiles as the convex tile. First, arrange concave tiles on the battens in rows. Then apply a layer of mortar between every two rows of concave tiles and place a row of roll tiles on top. Apply another layer of mortar over the roll tiles to form smooth plastered roll tiles, and apply a layer of wuyin at last. Canton roof tiling usually adopts red pan and roll tiles, where the application of wuyin gives the black colour to the plastered roll tiles. The main ridge of a Canton roof is relatively with a greater variety and more decorative.
Image 1
Image 2
Image 3
題材:六國大封相
香港不少具規模的傳統中式廟宇會飾以石灣瓦脊,大夫第是唯一一所民居以石灣陶瓷作為屋脊裝飾。在香港飾以六國大封相瓦脊的古建築有三所,包括新田大夫第(正脊)、香港仔天后古廟(正脊)和銅鑼灣天后古廟(二進後正脊)。
六國大封相劇情講述春秋時代中國分為七國,而七國之中以秦國最強。蘇秦遊說六國合縱抗秦,六國國君均被說動,魏王命黃門官公孫衍請齊、楚、燕、韓、趙五國諸侯會商,封蘇秦為六國丞相,於洹水築台,由公孫衍代為頒賜,六國元帥排列參加儀式。
六國大封相場面熱鬧,戲班總動員,乃粵劇中特別隆重的例戲。六國拜相有多個潛在意義,包括象徵榮耀並表達祝福、象徵屋主富裕和共同抗敵。
Image 1
Image 2
香港不少具規模的傳統中式廟宇會飾以石灣瓦脊,大夫第是唯一一所民居以石灣陶瓷作為屋脊裝飾。在香港飾以六國大文如璧瓦脊流傳於兩廣和東南亞的建築,包括香港(3所)、廣東省(5所)、廣西省(1所)和馬來西亞(2所)。現存文如璧瓦脊19條,數量在現存石灣瓦脊中排行第三,設於11所建築中,有兩條為博物館藏品。文如璧由道光戊申歲(1848年)至宣統三年(1911年)生產瓦脊,歷時超過半個世紀。在民國十四年(1925年)有如璧全記繼續生產。封相瓦脊的古建築有三所,包括新田大夫第(正脊)、香港仔天后古廟(正脊)和銅鑼灣天后古廟(二進後正脊)。
文如璧【約清康熙五年(1667年)-雍正十一年(1733年)】,原籍順德,在康熙年間創立文如璧店。該店於嘉慶至道光年間主要製作花卉和雀鳥瓦脊,在道光晚期至咸豐之後開始製作人物瓦脊。清同治以後,該店規模可觀、實力雄厚,聘用固定專業工匠10多人,還有許多外包和季節工,所以凡涉及製作巨宅廟堂大型瓦脊的工程多由該店負責。
六國大封相劇情講述春秋時代中國分為七國,而七國之中以秦國最強。蘇秦遊說六國合縱抗秦,六國國君均被說動,魏王命黃門官公孫衍請齊、楚、燕、韓、趙五國諸侯會商,封蘇秦為六國丞相,於洹水築台,由公孫衍代為頒賜,六國元帥排列參加儀式。
1.馬、2.馬夫、3.元帥夫人
蘇秦受頒相位後,六國元帥夫人到場歡送蘇秦回鄉。騎馬者應為元帥夫人。大夫第瓦脊只有五匹馬,其中一位夫人改為乘車。
Image 1
戴上像廢紙蘿的高帽,穿海青,四人中第一個手持皮鞭,其餘三人手持像撐船的木板。為大官出場加強聲威,大叫喎呵。
Image 1
蘇秦持牙笏見公孫衍。
Image 1
瓦脊各元帥不見配劍,也沒有演出出台、背立、按劍而立等功架,而且都是鬚生。
Image 1
蘇秦受頒相位後,六國元帥夫人到場歡送蘇秦回鄉。騎馬者應為元帥夫人。大夫第瓦脊只有五匹馬,其中一位夫人改為乘車。
Image 1
此瓦脊製於同治四年(1865年)
Image 1
(詳參animation)
Image 1
(詳參animation)
現場所見,大夫第坑瓦數目有單數亦有雙數。
Image 1
另見屋脊意義資料
Image 1
山牆高於屋頂結構便可防火及阻止火勢蔓延。
The part of the gable wall which is higher than the roof can prevent fire hazard and the spread of fire.
Image 1